








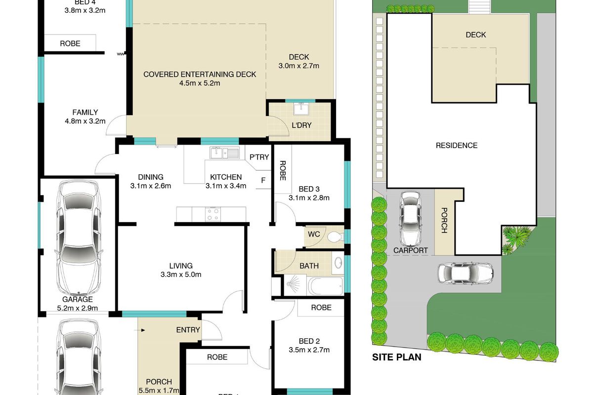
Positioned on a generous 695sqm block with an approx. 15.8m frontage, this neatly presented residence offers comfortable living now together with exciting future potential in a convenient family-oriented location.
Well maintained throughout, the home features polished timber flooring, a practical floorplan and an easy connection to the outdoor entertaining area, making it ideal for families, investors or buyers looking to secure a sizeable parcel of land with scope to further enhance over time (STCA).
A large covered rear deck provides the perfect space for entertaining, weekend barbecues or relaxed everyday living while overlooking the spacious backyard.
Comfortable as is, the property also offers excellent potential to renovate, extend or further capitalise on the generous block size in the future.
Additional features include:
* Approx. 695sqm block with 15.8m frontage
* Covered outdoor entertaining area
* Polished timber flooring
* Spacious backyard
* Off-street parking
* Scope to update or extend/rebuild STCA)
Conveniently located close to local and city bus services, major arterial roads, Grove Square, Winston Hills Mall, local parks and quality schools, this is a fantastic opportunity to secure a home with both immediate comfort and long-term potential.
Disclaimer: Images may include virtual furniture/styling, digital enhancements and lifestyle imagery. All information, measurements, locations and boundaries are approximate only. Interested parties should rely on their own enquiries and inspections.
Do you own a home?
Prepare for profit. Download our top tips on how to get the highest and best price when selling.
Subscribe to get the latest insider tips, market updates and access to the hottest deals as they come on the market.